By allowing ads to appear on this site, you support the local businesses who, in turn, support great journalism.
Council rejects attempt to halt G3 from building two warehouses
• Evins Funeral Home loses its appeal of G3 project
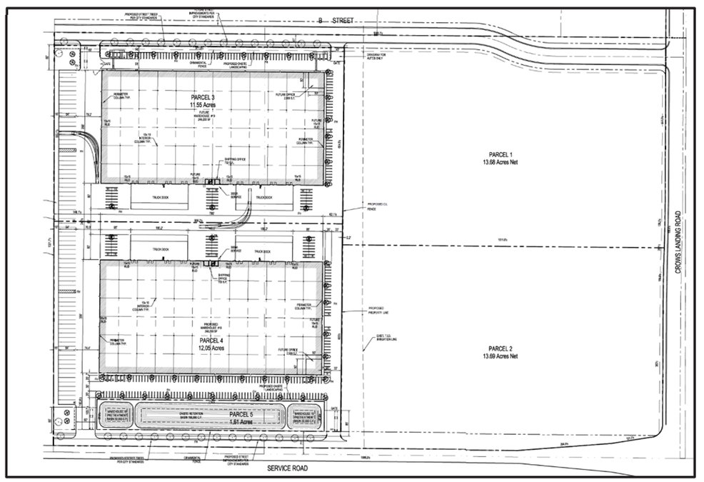
G3 warehouse project
This map shows where the two new warehouses for G3 Enterprises will be situated near the northwest corner of Service and Crows Landing roads. The warehouses will be separated from Crows Landing Road by two undeveloped parcels which will be developed in the future. - photo by Courtesty of the city of Ceres

The owners of Evins Funeral Home lost their attempt to halt G3 Enterprises from building two large warehouses at a rural location west of Crows Landing Road just north of Service Road.

In August the Ceres Planning Commission voted 3-1 to approve a site plan to subdivide a 57.34-acre parcel into five parcels on which the two large warehouses will be constructed by G3, a company providing logistics and packaging services particularly for the beverage industry, wants to build the warehouses.

While G3 Enterprises is not part of the Gallo Winery, it was founded by members of the Gallo family and offers a range of warehousing, transportation, and packaging components like closures and labels. 

Environmental review was not required since the land was evaluated as part of the West Landing Specific Plan environmental impact report before annexation was approved in 2008.

Planning consultant Lea Simvoulakis spoke to the eight issues brought up by Chris Evins of the neighboring Evins Funeral Home. Evins said he fears the additional traffic will be detrimental to his funeral operations and funeral processions to local cemeteries.

“Why this appeal is difficult is none of the issues directly spoke to findings that staff has to make for approval,” said Simvoulakis. “None of the issues spoke directly to CEQA. So the issues raised were more opinion-based and some of it not applicable to what you need to consider this evening for your decision. Specifically, issues of dignity and privacy were raised. While privacy can be a concern in development, a right to privacy is not an outright ability to deny a project. Development happens all the time. People feel their privacy in is infringed but as long as you adhere to things like setback, landscaping, appropriate siting of the building, you can dismiss this privacy issue. There is no right to dignity that we review, or that you should consider this evening.”

She noted that the warehouses should be a “less invasive use” than the land being used for agriculture.

The project includes a basin and two warehouse buildings that will be up to 249,000,200 square feet each. The large warehouses will be set back from Crows Landing Road and be accessible from Service Road. However, a new street – called B Street – will be required to be constructed to the north of the warehouses when the two vacant parcels fronting the west side of Crows Landing Road are developed.

Dave Romano represented G3 Enterprises, which operates at the former Procter & Gamble site at Crows Landing and Service roads. Romano said the location is ideal for a business park with access to nearby Highway 99 and I-5. He noted how the project has been years in the planning and occurred when the city was focused on making Crows Landing Road “an economic engine for the city.”

After the city annexed the former Procter & Gamble site for use as G3, the company began looking for places to grow and identified the 56-acre parcel for the warehouses.

“They really want to grow their presence in the city of Ceres,” Romano said of G3. “They currently have about 500 employees at their existing site. This will add to that and so we think it’ll be a real benefit for economic development for the city. So with that said, we understand that change occurs, we understand that it can be a little uncomfortable, but it has been known that these are the land uses in this area for end of 15 years.”

In August, Romano said G3 is aware of the neighboring farming and that “a warehouse is a much better use to be adjacent to farming and dust and those type of uses than would be an apartment complex or residential.”

“I will say this project is going to bring jobs to our area, not just the warehouses themselves, but also construction overall,” said Ceres City Councilwoman Cerina Otero. ”So I’m looking forward to that. It sounds like there’s already plans to fix the road issues.”

Councilwoman Rosalinda Vierra agreed, saying she was glad “to see livable wage jobs coming to Ceres and not more minimum wage service jobs like we see. I think we need both in the area to be supportive of the community overall.”

When the issue was before the Planning Commission in August, Mike Mendoza of the local Electrician’s Union argued for approval, noting that construction of the warehouses will offer much needed jobs “for our local workers to support their families, pay their mortgages and bills and strengthen the community.”

The city anticipates the construction of the warehouses will bring tens of millions of dollars in construction wages.

City Manager Doug Dunford noted at the end of the discussion that even though Evins said he wanted more time to speak to his attorney, apparent he had no attorney on record.

“As far as his funeral home, I don’t believe he has the legal permits to operate a funeral home there,” Dunford said.

Evins Funeral Home was operating at 1219 Seventh Street in downtown Modesto until it moved to 3637 Crows Landing Road within the Ceres city limits a few years ago.