By allowing ads to appear on this site, you support the local businesses who, in turn, support great journalism.
Small apartment complex approved
• Three units proposed for Whitmore Ave. & Sixth Street
Sixth Street duplex proposed
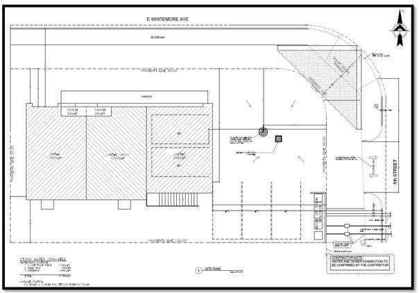
This 5.449-square-foot parcel at Whitmore Avenue and Sixth Street was approved for the building of three dwelling units on Monday by the Ceres Planning Commission. - photo by Jeff Benziger

The Ceres Planning Commission decided on Monday to approve the building of a three-unit multiplex apartment building on a small vacant lot at the southwest corner of Whitmore Avenue and Sixth Street.

The developer proposes to build two connected two-story dwelling units, each consisting of approximately 1,092 square feet, and one attached assessor dwelling unit (ADU) of approximately 546 square feet on the 5,449-square-foot parcel located at 2436 E. Whitmore Avenue.

The buildings will be physically connected, resulting in a single structure designed as a “duplex” with an attached ADU.

The site is designated as Downtown Residential (DR) in the Ceres General Plan, which allows single-family homes, townhomes, and multiple-family residential uses such as condominiums, duplexes, triplexes, and apartments. The proposed construction of dwelling units falls within the permitted density range.

The lot is in an area of a mixture of single-family and multi-family dwellings.

The applicant proposes full landscaping along the Whitmore Avenue frontage, consisting of groundcover, two-foot to three-foot tall shrubs, and four-foot to six-foot shrubs, which will help partially screen the building frontage and enhance the residential streetscape.

Because the driveway will be on Sixth Street, the east side will be landscaped primarily with grasses.

Ceres resident John Warren asked if there are any garages planned but did see parking for five vehicles when six are probably needed. Julian Aguirre, the city’s Economic Development manager filling in for a short planning staff, said two covered carports and three uncovered parking stalls are included. The city formula calls for 1.5 parking spaces per unit and one for the ADU.

The commission approved the site plan in a 4-0 vote. The commission is short a member with the sudden November resignation of Ishwar Gil. At the next meeting in 2026, Francisco Mireles will take his unexpired term.


Johnson given farewell

Meanwhile Dave Johnson finished up his last meeting as a commissioner, deciding not to see reappointment. The Ceres City Council is in the process of seeking applicants for the four-year term with Friday being the deadline.

Commission Chairman Gary M. Condit noted that Johnson has been on the Planning Commission since 2017.

“It’s been an honor to work alongside you, Dave,” said Condit. “I know you love Ceres and you’ve been a mentor of mine for a number of years. In this line of work when you’re an appointed commissioner, elected official, you have to have the courage to vote ‘no’ sometimes and you’ve done that on a numerous occasions for what you feel is best for Ceres and I respect that about you and I will carry that along with me as I stick here on the Planning Commission.”

Johnson said he’s had the privilege of “working with some great people, citing Bob Kachel, Gary Del Nero, Laurie Smith and Couper Condit.

“Interesting me stepping away but it is what it is,” said Johnson, who is 64. “I’m an old guy, I’m set in my ways and it’s frustrating sometimes but I expect good things to happen in this group. I wish everybody the best of luck.”

At the meeting it was announced that Stephanie Davis has been hired as the city’s new planning technician.

The next regularly scheduled meeting will be on Monday, Jan. 5 if it isn’t cancelled for lack of business.

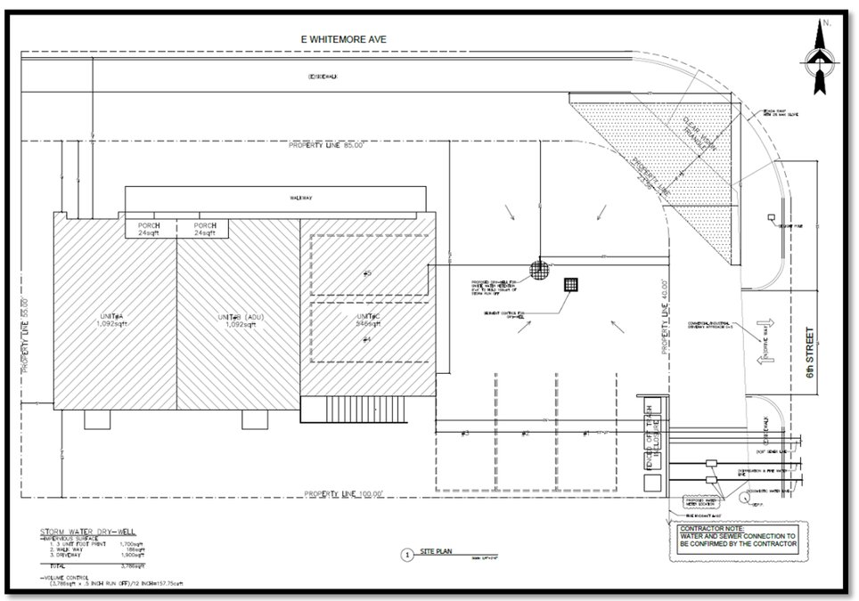
Sixth Street project overview
This image shows how the apartments will be situated on a small lot at the southwest corner of Whitmore Avenue and Sixth Street. - photo by Courtesy of the city of Ceres